Budowa silosa

Budowa silosa


Śr, 13 maja 2020, 19:39
3733
danield28
Zaczynający przygodę
 
Posty: 72
Obrazki: 65
Dołączył(a): Cz, 7 czerwca 2012, 13:41
Lokalizacja: Żuławy

Komentarz przez Pawel11441 » Śr, 13 maja 2020, 20:56

Silos 130t? Ten budynek rozumiem wiata nad koszem?
Jaki koszt samego kubełka z koszem?
Ziemia bez ludzi dziczeje.
Avatar użytkownika
Pawel11441
Zaczynający przygodę
 
Posty: 59
Obrazki: 162
Dołączył(a): Pn, 11 czerwca 2012, 20:13

Komentarz przez gonzo » Śr, 13 maja 2020, 21:39

Daniel za tyle co pisałeś, to ja bym ich kopnął w *miejsce gdzie plecy się kończą*. Kubełek albo łańcuchowy zrób umocowany do silosu a wiatę sobie daruj i tak nieustawna lepiej zrobić halę oddzielnie.
To ja uczę się od was, proszę więc o patrzenie przez pryzmat nauki na moje wypowiedzi.
---------------------------------------------------------------------------------------------------------
Jestem Polakiem i piszę po polsku.
Avatar użytkownika
gonzo
Administrator
 
Posty: 1098
Obrazki: 249
Dołączył(a): Pn, 4 czerwca 2012, 11:13
Lokalizacja: powiat Brodnica

Komentarz przez danield28 » Cz, 14 maja 2020, 20:05

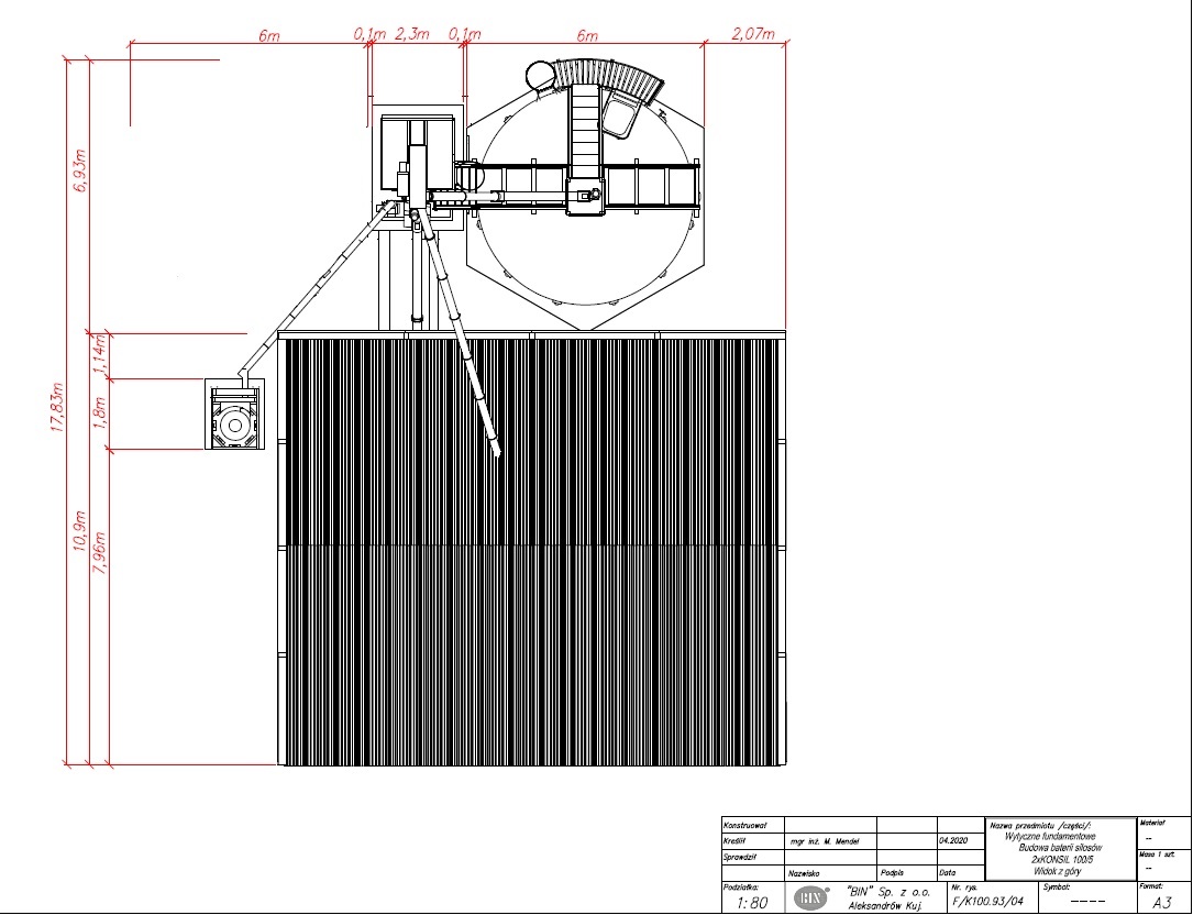
Silos lejowy 105 ton, kubełek 14,8m, kosz przyjęciowy 6m no i wiata obudowana z dwoma bramami wszystko produkcji Bin. Cena za sprzęt ponad 210 tys netto, do tego fundamenty pod to wszystko około 100 tys netto.

Na dzień dzisiejszy zrezygnowałem z wiaty nad koszem bo to koszt rzędu 93 tys. netto i około 40 tys. netto fundamenty pod tą wiatę.
danield28
Zaczynający przygodę
 
Posty: 72
Obrazki: 65
Dołączył(a): Cz, 7 czerwca 2012, 13:41
Lokalizacja: Żuławy

Powrót do Magazynowanie zboża